Affitto

Appartamento

Potenza, Piazza delle Regioni 5

€ 450

DESCRIZIONE



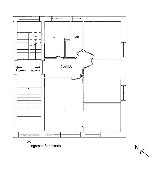
In piazza delle Regioni 5 (rione Santa Maria), vi proponiamo in affitto, trilocale non ammobiliato, situato al piano rialzato di un piccolo fabbricato composto da 6 unità abitative. L'immobile ha una superficie interna netta di circa mq. 75 ed è composto da ingresso, cucina, soggiorno/pranzo, due camere da letto e bagno. Dotato di riscaldamento autonomo e basse spese condominiali, rappresenta una soluzione di pratica e facile gestione. Completa la proprietà un comodo posto auto esterno assegnato.

INDIRIZZO



Città:
Potenza (PZ)
Indirizzo:
Piazza delle Regioni 5

ALTRE INFORMAZIONI



Mq:
75
Classe energetica:
In fase di certificazione
Vani:
3
Bagni:
1
Piano:
Rialzato
Ascensore:
No
Posto auto:
Termoautonomo:
Stato dell'immobile:
Buono
Disponibilità:
Libero

Pagina precedente

RICERCA VELOCE