Vendita

Casa Indipendente

Pignola, Pantano - Contrada Molino di Piede

€ 74.000

DESCRIZIONE



 

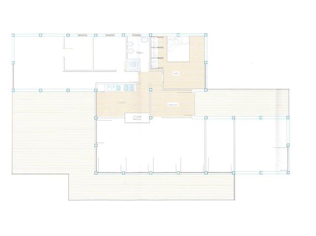
Pantano – Contrada Molino di Piede - in contesto tranquillo e riservato, immerso nel verde, proponiamo in vendita un fabbricato indipendente in legno, attualmente in corso di costruzione, ideale per chi desidera realizzare una casa circondata dalla natura con ampi spazi privati. L’immobile sviluppa una superficie di circa 160 mq su un unico livello ed essendo ancora allo stato di costruzione, offre la possibilità di personalizzare completamente la distribuzione interna degli ambienti e le finiture, secondo i propri gusti ed esigenze. Completa la proprietà un ampio terreno pertinenziale di circa 4.000 mq, perfetto per chi desidera realizzare un giardino, un orto o altri spazi ricreativi. La destinazione d’uso attuale è rurale (abitazione e annessi), con possibilità di variazione totale in abitazione.

 

INDIRIZZO



Città:
Pignola (PZ)
Indirizzo:
Pantano - Contrada Molino di Piede

ALTRE INFORMAZIONI



Mq:
160
Ascensore:
No
Disponibilità:
Libero

Pagina precedente

RICERCA VELOCE