Vendita

Appartamento

Pignola

€ 59.000

DESCRIZIONE



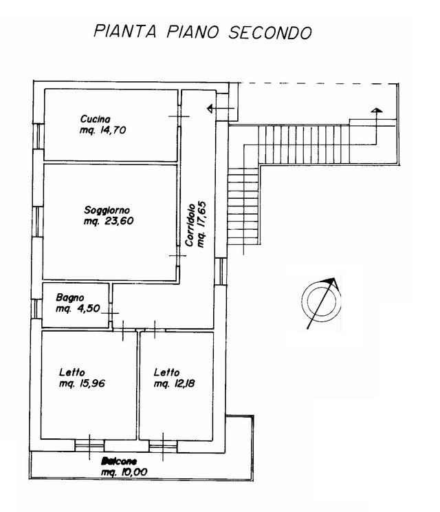
Pignola, alle porte del paese, in zona tranquilla e riservata, proponiamo in vendita un appartamento con ingresso indipendente al secondo piano di un piccolo fabbricato composto da sole 3 unità immobiliari (senza spese condominiali). L’abitazione si sviluppa su una superficie di circa 90 mq calpestabili (110 lordi) oltre ad un balcone di circa 10 mq. Completamente da ristrutturare, offre la possibilità di ridistribuire e rifinire gli spazi interni secondo le proprie esigenze. Dotata di riscaldamento autonomo (a gasolio, non funzionante), con predisposizione immediata per il collegamento alla rete del gas metano, gode di terreno privato di circa mq. 900 con accesso diretto e indipendente da contrada Piatamone. Completa la proprietà comodo deposito di circa mq. 40 netti in adiacenza all’abitazione.

INDIRIZZO



Città:
Pignola (PZ)
Indirizzo:

ALTRE INFORMAZIONI



Mq:
90
Classe energetica:
In fase di certificazione
Bagni:
1
Balconi:
1
Piano:
2
Ascensore:
No
Termoautonomo:
Stato del fabbricato:
Da ristrutturare
Stato dell'immobile:
Da ristrutturare
Disponibilità:
Libero

Pagina precedente

RICERCA VELOCE