Vendita

Appartamento

Potenza, Via Pisa

€ 93.000

DESCRIZIONE



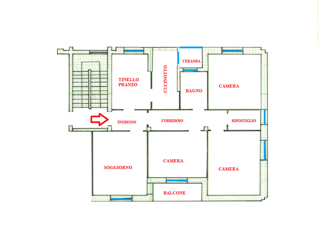
 Via Pisa (nei pressi di Piazza Don Bosco) zona strategica della città, completa di tutti i servizi e qualsivoglia attività di vicinato. Appartamento di mq 115 commerciali (netti 86) ai quali si aggiungono mq 2 di veranda, mq 4,5 di balcone e mq 5 di cantina. L'abitazione si compone di: ingresso, tinello pranzo, cucinotto, soggiorno, 3 camere, bagno e ripostiglio. Secondo piano e mezzo (no ascensore) Rifiniture risalenti all'epoca della costruzione, fatta eccezione per gli infissi esterni già sostituiti.

INDIRIZZO



Città:
Potenza (PZ)
Indirizzo:
Via Pisa

ALTRE INFORMAZIONI



Mq:
86
Classe energetica:
In fase di certificazione
Vani:
5
Bagni:
1
Ascensore:
No
Termoautonomo:

Pagina precedente

RICERCA VELOCE