Vendita

Appartamento

Potenza, Via Livorno

€ 160.000

DESCRIZIONE



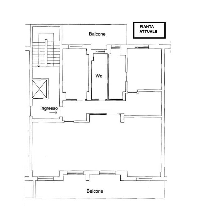
Via Livorno (Parco Aurora) appartamento di mq 132 commerciali (105 netti) ai quali si aggiungono mq 32 di balconi + garage di circa mq 20. Posto al terzo piano con ascensore, con doppia esposizione e balcone su entrambi i lati con ampia visuale. L'appartamento si presenta da ristrutturare e redistribuire internamente in quanto costituiva porzione di un immobile più grande regolarmente frazionato. La superficie e la doppia esposizione rendono possibili molteplici soluzioni di distribuzione interna. Termoautonomo.

INDIRIZZO



Città:
Potenza (PZ)
Indirizzo:
Via Livorno

ALTRE INFORMAZIONI



Mq:
105
Classe energetica:
In fase di certificazione
Piano:
3
Ascensore:
Garage:
Termoautonomo:
Stato del fabbricato:
Buono
Disponibilità:
Libero

Pagina precedente

RICERCA VELOCE