Vendita

Appartamento

Potenza, Via Sant'Oronzo

€ 89.000

DESCRIZIONE



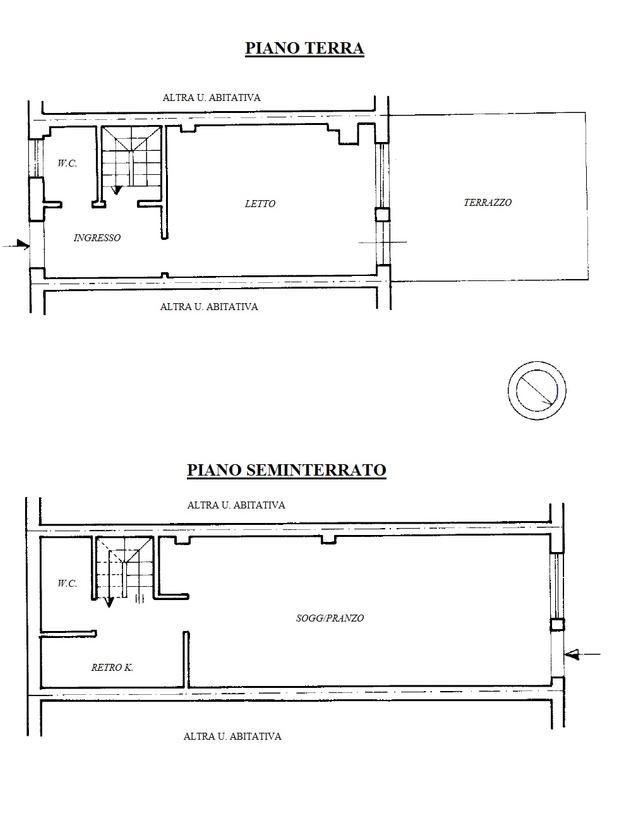
In Via Sant’Oronzo (ex Marrucaro) proponiamo in vendita una porzione di fabbricato trifamiliare, sviluppato su due livelli, per complessivi mq. 100 lordi circa, ovvero mq. 85 netti, oltre un terrazzo di circa mq. 20. L’immobile, costruito negli anni ’90, grazie al doppio accesso, offre la possibilità di accedere separatamente sia dal piano terra sia dal primo piano, soluzione ideale per chi cerca autonomia e flessibilità nella gestione degli spazi. Al piano terra si trova un ampio soggiorno con angolo cottura, un retrocucina e un bagno; al piano superiore sono presenti un ingresso, una camera, un secondo bagno e un terrazzo. Completa la proprietà un piccolo vano sottotetto ad uso deposito accessibile dall’interno e un terreno pertinenziale, di esclusiva proprietà, di circa 700 mq. Dotato di riscaldamento autonomo a gas metano, si distingue per la tranquillità e la riservatezza della posizione, pur restando facilmente collegato ai principali servizi. Si presta sia come abitazione principale sia come seconda casa o soluzione per hobby e attività ricreative.

INDIRIZZO



Città:
Potenza (PZ)
Indirizzo:
Via Sant'Oronzo

ALTRE INFORMAZIONI



Mq:
85
Classe energetica:
In fase di certificazione
Vani:
4
Bagni:
2
Ascensore:
No
Stato del fabbricato:
Buono
Stato dell'immobile:
Buono
Disponibilità:
Libero

Pagina precedente

RICERCA VELOCE