Vendita

Villa

Pignola, Contrada Campo di Giorgio

€ 225.000

DESCRIZIONE



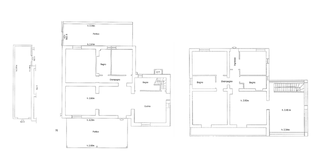
 Pignola, contrada Campo di Giorgio (vicino il ristorante Punto Verde) Proprietà immobiliare costituita da fabbricato indipendente su due livelli per complessivi mq. 280 netti interni + porticati + circostante giardino e piazzale. Il fabbricato si compone al piano terra di garage di mq. 45 + abitazione di mq. 115 ed al piano superiore dell'abitazione di mq. 120 + balcone. Il tutto è circondato da mq. 3.000 di pertinenza esterna distribuita tra giardini (in parte piantumati), ampio piazzale e viale di collegamento alla strada comunale.

INDIRIZZO



Città:
Pignola (PZ)
Indirizzo:
Contrada Campo di Giorgio

ALTRE INFORMAZIONI



Classe energetica:
In fase di certificazione
Ascensore:
No
Giardino:
Termoautonomo:

Pagina precedente

RICERCA VELOCE